Omar’s Vision park home caused a stir when it was unveiled a few years ago, for it was the only park home that had, effectively, two lounges – that’s a self-contained, separate lounge, plus sofa seating in the open-plan dining-kitchen-lounging area.
Now, Omar has replaced the Vision with a model that retains the Vision’s unique lounge concept within the open-plan zone – this time, though, with a new layout.
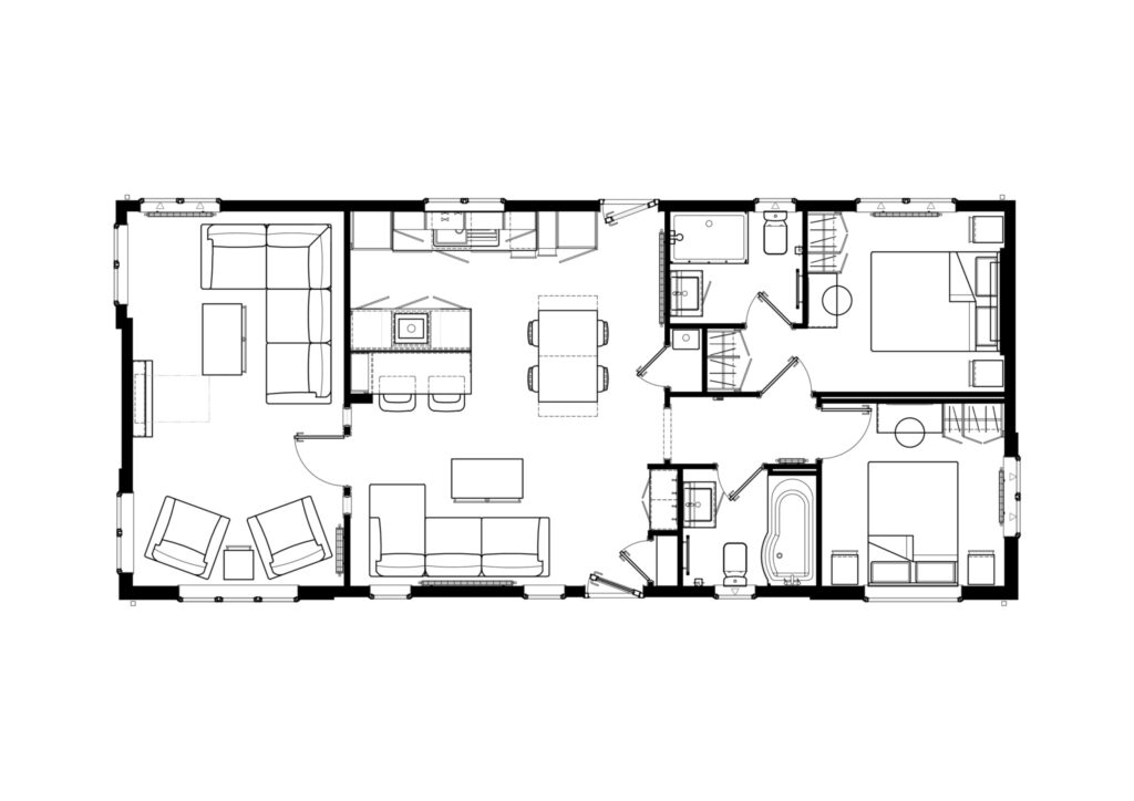
The new model is the Omar Serenity park home, available in two sizes, 45ft x 20ft and 50ft x 20ft.

In this video we take a walk around the 45ft x 20ft Omar Serenity park home:
The layout of the open-plan central kitchen-dining-lounging area is totally different from the Vision, which had two facing sofas on one side of the room, and the dining zone opposite. The Omar Serenity has a spacious sofa that culminates in a slight L-shape at one end. A large coffee table (with a drawer and shelves beneath) sits in front of it. A definite lounging area, with cosiness paramount.

Opposite is the kitchen and integral breakfast bar, with two comfortable chairs that sit under the raised section to create the breakfast bar and form a separation between the breakfast zone and the cooking area.

The four-burner hob is in this sector of the kitchen, with a good amount of surface space on both sides of it, and a chimney-style extractor fan above. The microwave is nearby, with the oven beneath it.

Styling is simply modern, with ivory units and neat, long bar handles. Design interest comes in the form of a wall shelf unit that borders the breakfast area. It’s finished in natural wood, as is the cabinet casing and two wall cabinets that flank the washing-up zone; that’s the large white sink and drainer and the dishwasher conveniently placed beneath. There’s also a washing machine.

To the left of this area is a triple cupboard arrangement that houses the fridge-freezer, a six-shelf cabinet and a large pull-out larder-style unit; the door pulls forward to reveal five metal basket-style shelves.
Elsewhere, there are four drawers, a cabinet beside the dishwasher, cabinets both above and below the microwave and oven and, in the breakfast bar unit, three cabinets. Altogether, storage space in the Omar Serenity kitchen is plentiful.

The dining table (more natural wood) is next to the kitchen, with four grey, gorgeously comfortable, velvet-upholstered chairs.
A single glass globe light hangs over the table.
The serene cream dominant colour of both the seating in this room and of the separate lounge is enlivened by pops of rich red-burgundy. That’s for two of the cushions, and pink for the third cushion on the sofa, plus the Roman-style blinds and also the upholstery and bolster cushion on the boot seat, by the door.

The same lovely pink is used for the upholstery of the two chairs in the lounge. The large, L-shaped sofa is upholstered in cream. It’s a simple colour scheme – but also stunning and memorable.

A log-effect electric fire sits in a plain white fireplace.
Three floor-to-ceiling windows, with integral French doors that open to your decking,make sure the room is very light and airy.

The Omar Serenity’s two bedrooms are almost identical in size, and sit beside one another at the back of the home. The entrance of one of these rooms opens to the en-suite shower room, with a tall, chrome-finished towel warmer and a basin that has a cabinet and shelving beneath.

The rich red that defines the Serenity is used in both bedrooms for the tall bedheads, bed cushions and curtain ties.

Both bedrooms have dressing tables with cylindrical stools alongside the wardrobes. One bedroom has a wide window above the bedhead.

The bathroom has an unusual P-shaped bath – that’s wider at the tap end, where there is a splash shield – and, in common with the shower room, there’s a tall towel warmer.

Verdict: The presence of the sofa in the kitchen-dining area makes the Omar Serenity an ideal park home for buyers who want to entertain; everyone can be together, while the ‘chef’ is concocting the meal, so conversation can flow as well as the wine. And when you want even more seating comfort, you can retire to the lovely, luxurious lounge.
Outside of entertaining times, this layout means that one person can be watching television in the lounge and another can be watching a different programme on a television in the “second lounge”. So this park home offers versatility like no other.
Plus points: The lounging area in the kitchen-dining zone. The separate lounge. The excellent amount of storage in the kitchen. The boot seat, shoe cabinet and coat hooks in a recess by the door
Minus points: None
In a nutshell: A new park home, with two lounge areas, a breakfast bar – and lovely simple styling that will appeal to most tastes.

Size: 45ft x 20ft
Bedrooms: Two
Sleeps: Four
Build standard: BS 3632
Ex-works price: £165,333*
Spotted in the classifieds: A 2026 Omar Serenity park home for sale in Essex (CO16). Sited costs £269,995.
Cost to insure this sited park home would be £217
To find out more about insuring an Omar Breckland or your current park home visit our park home insurance page.
For more information about the range of residential park homes and lodges from Omar visit www.omar.co.uk or call 01842 810673.
*Extra charges will be made by park operators and/or distributors for transport and siting and annual maintenance. Please check the price carefully before you commit to buy as prices vary considerably dependant amongst other factors, on the geographical location of your chosen park.
**Leisuredays park home insurance quote based on a 2026 Omar Serenity two bedroomed 45ft x 20ft park home, insured for £274,995 (£269,995 for structure and £5,000 contents). Owners are a 68-year-old retired couple with previous park home insurance and three years no claim discount. £75 excess applies. No personal effects or pedal cycle cover included. Insurance premium includes insurance premium tax at the current rate and is correct as of 18/12/2025.